Home
About
Versions
Projects
Press
Market
Contact
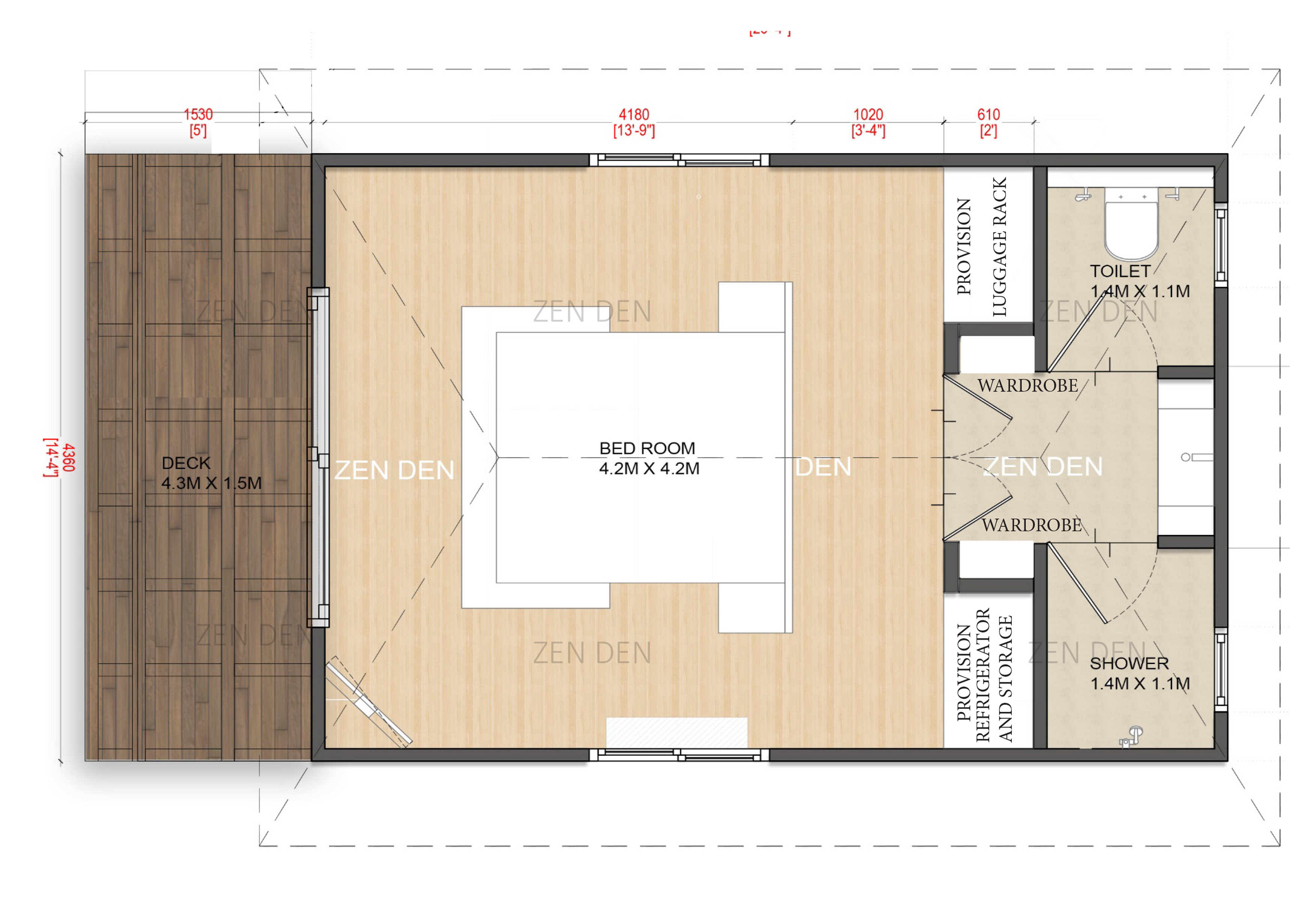
Zenden Resort
Prev
Next
Download Brochure